こだわりの間接照明で
心地よいゆとり空間を実現
東京都・K様
家族構成:3人(ご夫婦・子ども1人)
知人からのご紹介でハイムを選ばれたK様。ご主人はダウンライトと間接照明を組み合わせたくつろげる照明に、奥様は家事動線のよい間取りにこだわられました。何度も打合せを重ね、お二人の希望を叶えた住まいは、実用的でかつ家族の気持ちのゆとりにつながる居心地のよい空間。やさしい灯りに包まれたのびやかな空間に、今日も家族みんなの笑顔があふれています。
共働きの奥様の強いご希望で設置した、2階のランドリールーム。洗濯が終わったら、上下階の移動なくそのままバルコニーへ。家事動線が短い上、1階の洗面脱衣室を広々と使うことができます。
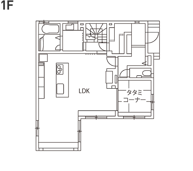
LDK横の小上がりになった畳スペースは、お子様のお昼寝や遊び場として大活躍。キッチンから目が届くので、お子様の姿を見守りながら家事ができ、安心です。また畳の下部は収納スペースになっているので、たっぷり物をしまえて「とっても便利!」とご主人。
続きを読む
寝室の隣には、小上がりで隠れ家的な雰囲気もあるご主人の書斎。造り付けの机は、堀りごたつのように足をおろして座れます。ブルーのプリーツスクリーンを通してあふれる日差しの下、父子がのんびり過ごせる空間です。
続きを読む
ご主人こだわりの間接照明のよさを十二分に活かした寝室。照明だけでなく、腰高の窓に丈の長いカーテンを合わせる、照明を埋め込んだ飾り棚を設けるなどの一工夫で、まるでホテルの一室のようなくつろぎ空間を演出しています。
続きを読む
使い勝手にこだわったキッチンは、仕事に家事に忙しい奥様の強い味方。快適エアリーの空気清浄効果で「料理のにおいが残らないので、いつでも快適。それに結露もほとんどないので、家事がずいぶんラクになりました」と、奥様もにっこり。
続きを読む
| 商品 | パルフェ |
|---|---|
| 延床面積 | 1F 71.97㎡ 2F 63.90㎡ 計 135.87㎡ |





































